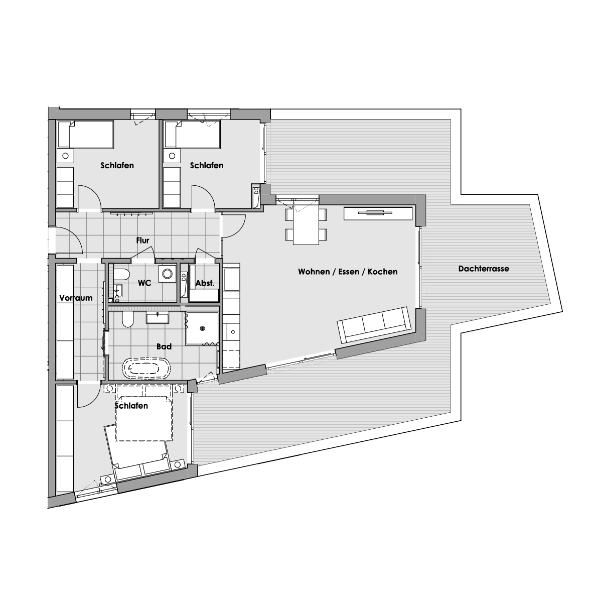
4 Zimmer Wohnung mit Dachterrasse
B11
Haus B4
Zimmer124
qm3
Obergeschoss

Haus B4
Zimmer124
qm3
Obergeschoss


reserviert
Wohnung B11
4 Zimmer-Wohnung mit Dachterrasse
lage: 3. Obergeschoss
Flur:9,24 qm
Vorraum:7,07 qm
Wohnen/Essen/Kochen:35,14 qm
Schlafen:11,23 qm
Schlafen:10,67 qm
Schlafen:16,09 qm
Bad:9,82 qm
WC:3,25 qm
Abst.:1,48 qm
Dachterasse:19,98 qm
gesamt:123,97 qm
Eigenschaften
Aufzug
Gegensprechanlage
KFW
Lüftungssystem
Tiefgarage
Ziegelbauweise
Lageplan
Anfahrt und Umgebung
Haus
AHaus
BHaus
CHaus
D
AHaus
BHaus
CHaus
D