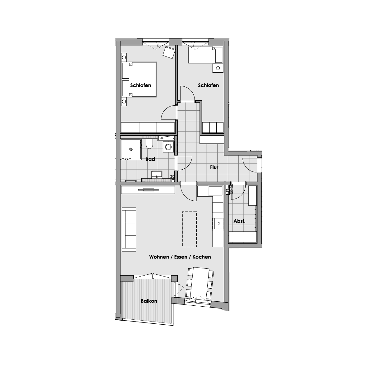
3 Zimmer Wohnung mit Balkon
B13
Haus B3
Zimmer88
qm3
Obergeschoss

Haus B3
Zimmer88
qm3
Obergeschoss


Wohnung B13
3 Zimmer-Wohnung mit Balkon
lage: 3. Obergeschoss
Flur:11,96 qm
Wohnen/Essen/Kochen:33,78 qm
Schlafen:10,46 qm
Schlafen:15,47 qm
Bad:7,44 qm
Abst.:5,32 qm
Balkon:3,29 qm
gesamt:87,72 qm
Eigenschaften
Aufzug
Gegensprechanlage
KFW
Lüftungssystem
Tiefgarage
Ziegelbauweise
Lageplan
Anfahrt und Umgebung
Haus
AHaus
BHaus
CHaus
D
AHaus
BHaus
CHaus
D