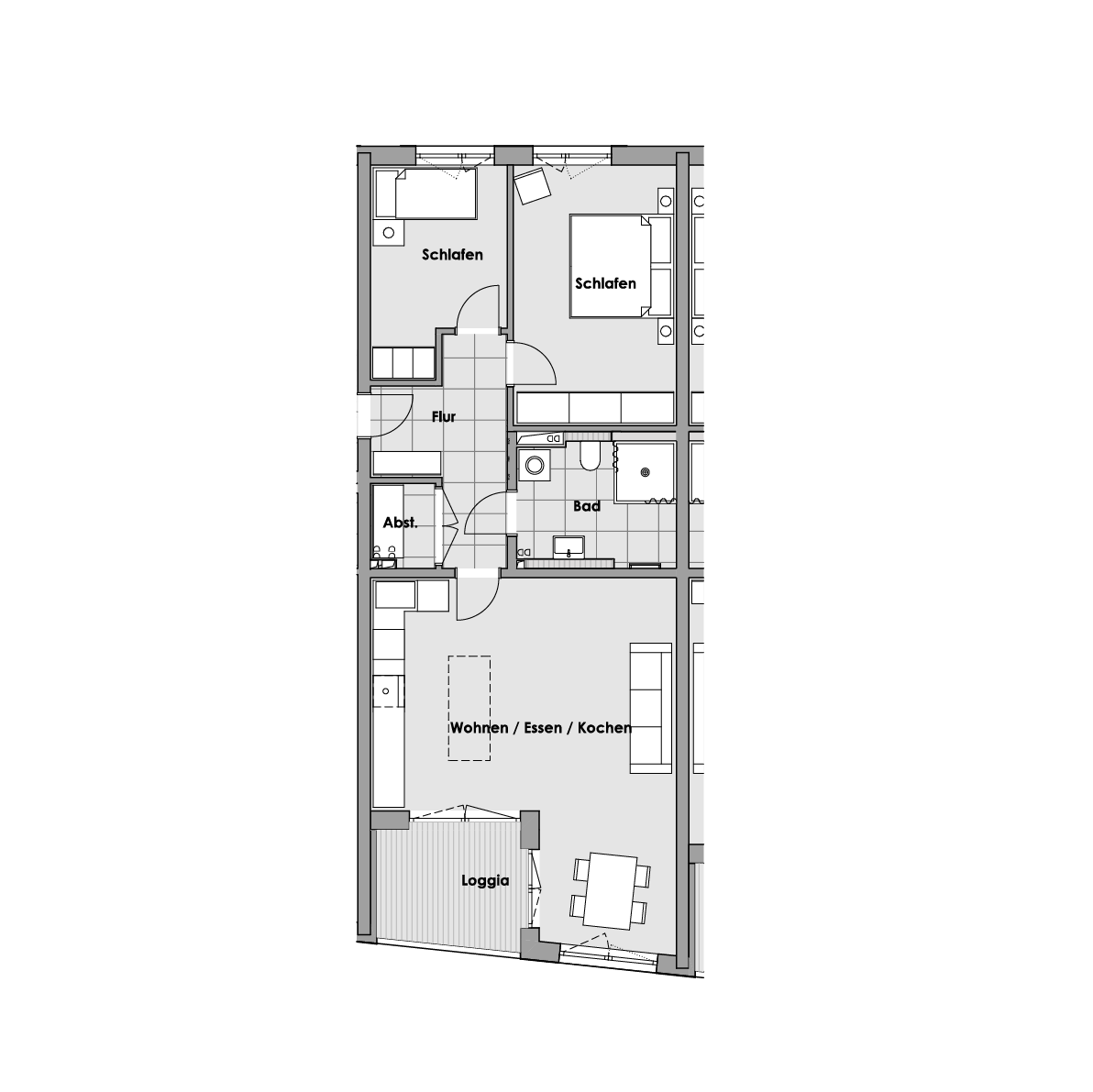
3 Zimmer Wohnung mit Loggia
C10
Haus C3
Zimmer79
qm3
Obergeschoss

Haus C3
Zimmer79
qm3
Obergeschoss


verkauft
Wohnung C10
3 Zimmer-Wohnung mit Loggia
lage: 3. Obergeschoss
Flur:7,98 qm
Wohnen/Essen/Kochen:33,41 qm
Schlafen:9,38 qm
Schlafen:15,47 qm
Bad:7,44 qm
Abst.:1,95 qm
Loggia:3,33 qm
gesamt:78,96 qm
Eigenschaften
Aufzug
Gegensprechanlage
KFW
Lüftungssystem
Tiefgarage
Ziegelbauweise
Lageplan
Anfahrt und Umgebung
Haus
AHaus
BHaus
CHaus
D
AHaus
BHaus
CHaus
D