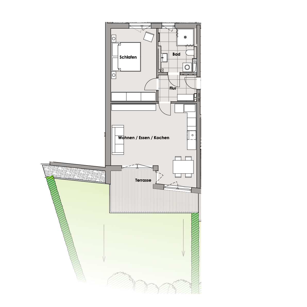
2 Zimmer Wohnung mit Gartenteil
D03
Haus D2
Zimmer63
qmEG
Erdgeschoss

Haus D2
Zimmer63
qmEG
Erdgeschoss


verkauft
Wohnung D03
2 Zimmer-Wohnung mit Gartenteil
lage: Erdgeschoss
Flur:4,64 qm
Wohnen/Essen/Kochen:28,74 qm
Schlafen:15,47 qm
Bad:7,27 qm
Terrasse:6,46 qm
gesamt:62,58 qm
Eigenschaften
Aufzug
Gegensprechanlage
KFW
Lüftungssystem
Tiefgarage
Ziegelbauweise
Lageplan
Anfahrt und Umgebung
Haus
AHaus
BHaus
CHaus
D
AHaus
BHaus
CHaus
D