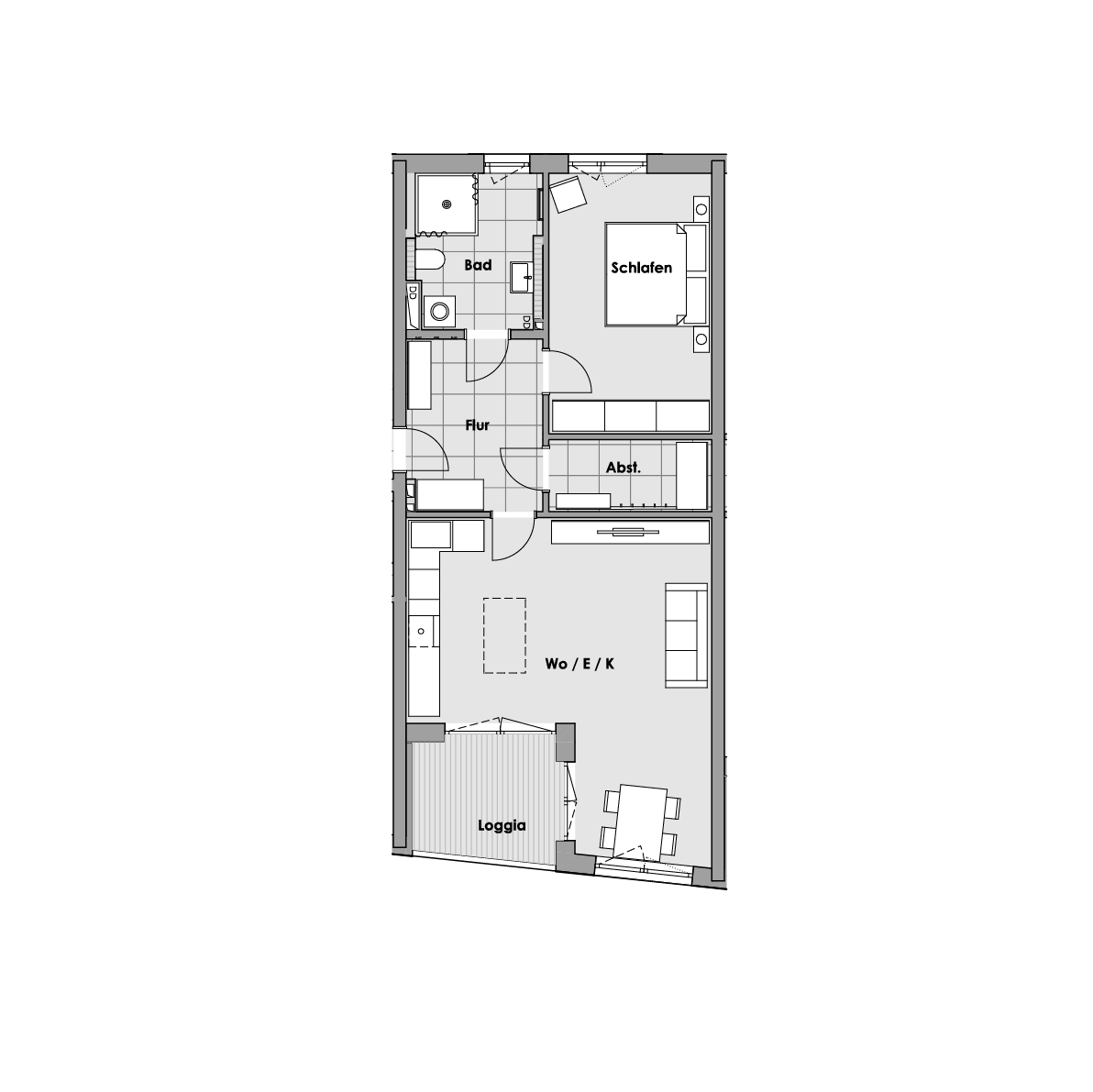
2 Zimmer Wohnung mit Loggia
D07
Haus D2
Zimmer69
qm2
Obergeschoss

Haus D2
Zimmer69
qm2
Obergeschoss


reserviert
Wohnung D07
2 Zimmer-Wohnung mit Loggia
lage: 2. Obergeschoss
Flur:8,52 qm
Wohnen/Essen/Kochen:30,34 qm
Schlafen:15,47 qm
Bad:7,27 qm
Abst.:4,27 qm
Loggia:3,33 qm
gesamt:69,20 qm
Eigenschaften
Aufzug
Gegensprechanlage
KFW
Lüftungssystem
Tiefgarage
Ziegelbauweise
Lageplan
Anfahrt und Umgebung
Haus
AHaus
BHaus
CHaus
D
AHaus
BHaus
CHaus
D